MH835,  Agárd – Gárdony kedvelt részén felújított lakóingatlan eladó!

Ref # : MH835

Eladó 59.900.000 Ft
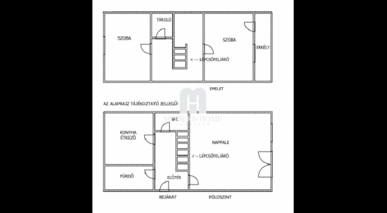
Eladásra kínálom Agárd – Gárdony kedvelt részén azonnal birtokba vehető, tehermentes, felújított, téliesített nyaralót. ( ikerház ) Főbb jellemzők: Telek mérete: osztatlan közös terület amely ( 426 nm ), az eladó terület --- 213 nm, kerítéssel elválasztva. A szomszédok között szerződés ( az-az használati megállapodás történt ). Utcafront:13 m széles. Nyaraló mérete: 80 nm, kétszintes. Tájolása: K-NY-i. Elosztása: Földszint: * előtér + nappali + lépcsőház + fürdő + wc + konyha. Emelet: 2 szoba + tároló --- > padlásfeljáró. Korszerűsítés: ( 4 éve ). Vízrendszer / szennyvízhálózat részben, villanyhálózat ( réz ) teljes körűen korszerűsítve. Villanyhálózat: 1 * 32 A. A nyaraló téliesített. Az otthon melegét: wifi-ről állítható klíma biztosítja. ( hűt – fűt ). A villanyhálózat elektromos fűtőpanel lehetőségét is elbírja, illetve plusz kéménynek köszönhetően cserépkályha / kandalló elhelyezhető. Fürdőszobában elektromos hálózatról vezérelt törölköző szárítós radiátor is a rendelkezésre áll. Meleg-víz ellátásról okos villanybojler gondoskodik. ( 100 l ). Gáz az utcában. Riasztóval és kamera rendszerrel felszerelt. Több ponton záródó bejárati ajtó, 2 rétegű fa nyílászárók kerültek beépítésre, melyek hőszigetelt alumínium redőnnyel és szúnyoghálóval felszereltek. Szobákban eredeti – csiszolt – korának megfelelő, jó állapotú parketta, a többi helyiség igényes – minőségi járólappal fedett. Fürdőszoba új arculattal élesíti a házat. Falazat: beton alapra épült, tégla falazatú. Szerkezetileg kimondottan megfelelő, jó állapotú. Tetőborítás: zsindely. Kert / udvar: A terület méretének köszönhetően kiválóan alkalmas családi összejövetelekre, grillezésre, bográcsozásra, gyerekek részére medence, játszóház, trambulin elhelyezhető. Udvarban kerti csap. Lakóközösség csendes, kedves, összetartó. Lokáció: Agárd – Gárdony központ --- > minden, ami a megélhetéshez szükséges ( LIDL, ALDI, SPAR, posta, gyógyszertár, pékség, pizzéria, strand -- > 10 perc alatt, vasútállomás / vasúti átjáró 5 perc alatt megközelíthető. Hívjon bizalommal.

További információk

Alap információk

Szobák száma: 3
Fürdőszoba: 1

További információk

Alapterület: 80 m2
Telekméret: 213 m2
Hasonló ingatlanok
Kapcsolódó ingatlanok
MH553,  Agárd / Gárdonyban újépítésű lakás eladó!
Eladva

MH553, Agárd / Gárdonyban újépítésű lakás eladó!

Gárdony, Gárdony, 2483, Fejér
32.800.000 Ft
MH554,  Agárd / Gárdonyban újépítésű lakás eladó!
Eladva

MH554, Agárd / Gárdonyban újépítésű lakás eladó!

Gárdony, Gárdony, 2483, Fejér
32.800.000 Ft
MH585, ÁRZUHANÁS!   Gárdonyban családi ház eladó!
Eladva

MH585, ÁRZUHANÁS! Gárdonyban családi ház eladó!

Gárdony, Gárdony, 2484, Fejér
37.500.000 Ft
MH587, Gárdony kedvelt részén családi ház eladó!
Eladva

MH587, Gárdony kedvelt részén családi ház eladó!

Gárdony, Gárdony, 2484, Fejér
79.000.000 Ft
Ezeket az ingatlanokat látta már?
MH869, ÁRCSÖKKENÉS! Kincsesbányán családi ház eladó!
Eladó

MH869, ÁRCSÖKKENÉS! Kincsesbányán családi ház eladó!

8044, Kincsesbánya, 8044, Fejér
39.900.000 Ft
MH893, Lakóövezeti telek eladó Sárszentágotán!
Eladó

MH893, Lakóövezeti telek eladó Sárszentágotán!

8126, Sárszentágota, 8126, Fejér
3.500.000 Ft
MH900, BOMBA JÓ AJÁNLAT BALATONVILÁGOSON!
Eladó

MH900, BOMBA JÓ AJÁNLAT BALATONVILÁGOSON!

8171, Balatonvilágos, 8171, Veszprém
139.900.000 Ft

Ingatlan kereső

  • Gyorskereső
  • (Ft). 0
    (Ft). 500,000,000
  •   Részletes keresés