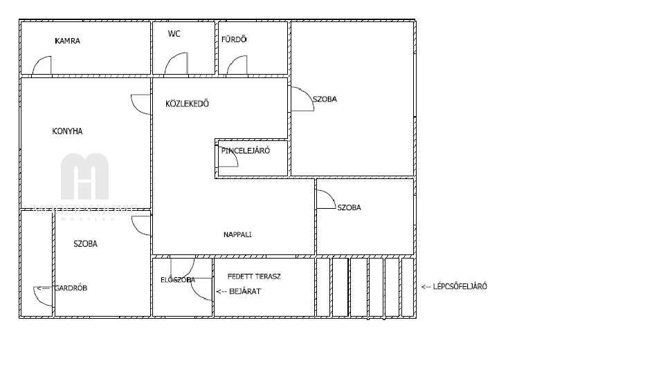
MH699,  Csákváron családi ház eladó!

  • Alapterület: 100 m2
  • Telekméret: 511.00 m2
  • Fürdőszoba: 1
  • Szobák száma: 4
  • Kategória: Családi ház

Ref # : MH699

Eladva 42.000.000 Ft
Jó választás! Csákváron családi ház eladó! Eladásra kínálom Csákvár csendes részén, 511 nm –es telken, 1980 évben épült, egyszintes ( tetőtér beépíthető ), 100 nm –es, tágas – világos nappali + 3 szobás + gardróbos, jó állapotú, összkomfortos, téglaépítésű családi házat. A házikó részben alápincézve, ahol tároló és garázs kapott helyet. Az alápincézett rész házon belül és kívülről is megközelíthető. Az otthon melegét vegyes tüzelésű kazán + elektromos fűtés biztosítja. ( ADAX és INFRA – panelek ). Plusz kéménynek köszönhetően kandalló / cserépkályha kialakítható. Meleg-víz ellátásról 120 literes éjszakai áramról működő bojler biztosítja. Gáz bevezetve. ( jelenlegi tulajdonos nem használja ). Korszerűsítést követően ( 2011 évben ) a villanyhálózat teljes-körű felújításon esett át. Több ponton záródó minőségi bejárati ajtó és beltéri ajtók, illetve műanyag nyílászárók kerültek beépítésre, melyek szúnyoghálóval és alumínium redőnnyel felszereltek. Szobákban laminált parketta, ( + lépésálló szigetelés ), míg a többi helyiség járólappal burkolt. Fürdőszobában (épített kézmosó), és minden igényt kielégítő masszázskád ékesíti a házat. Ajánlom nagycsaládosok részére, hiszen a tetőtér beépíthető ( amit a nappaliból lehet megközelíteni ). Csendes utca, segítőkész szomszédokkal. A telek méretének köszönhetően kiválóan alkalmas családi összejövetelekre, grillezésre, bográcsozásra, gyerekek részére medence / játszóház elhelyezhető. Jelenleg az udvar kisebb karbantartást igényel, egy igazán igényes kertté alakítható. Udvarban kétállásos autóbeálló, és melléképületek találhatóak. Csákvár egy rohamosan fejlődő település: Infrastruktúra szempontjából: iskola, óvoda, bölcsőde, buszmegálló, posta, boltok ( több is ), kirendelt kórház, cukrászda 10-15 perc kellemes sétával elérhető. Amennyiben az ingatlan felkeltette érdeklődését, kérem, hívjon bizalommal.

További információk

Alap információk

Szobák száma: 4
Fürdőszoba: 1

További információk

Alapterület: 100 m2
Telekméret: 511 m2
Hasonló ingatlanok
Kapcsolódó ingatlanok
MH120, Csákváron panorámás családi ház eladó!
Eladva

MH120, Csákváron panorámás családi ház eladó!

Felső-Haraszt u 3, Csákvár, 8083, Fejér
24.900.000 Ft
MH744, Csákváron családi ház eladó!
Eladva

MH744, Csákváron családi ház eladó!

8083, Csákvár, 8083, Fejér
39.990.000 Ft
MH842, Csákvár csendes részén családi ház eladó!
Eladva

MH842, Csákvár csendes részén családi ház eladó!

8083, Csákvár, 8083, Fejér
44.900.000 Ft
MH948, Csákvár csendes részén családi ház eladó!
Eladva

MH948, Csákvár csendes részén családi ház eladó!

8083, Csákvár, 8083, Fejér
38.800.000 Ft
Ezeket az ingatlanokat látta már?
MH3, Székesfehérvári felújított lakás eladó
Eladva

MH3, Székesfehérvári felújított lakás eladó

Székesfehérvár, belváros közelében, 8000, Fejér
13.500.000 Ft
MH4, Teljesen felújított lakás eladó, Székesfehérvár
Eladva

MH4, Teljesen felújított lakás eladó, Székesfehérvár

Székesfehérvár, Széchenyi utca, 8000, Fejér
10.800.000 Ft
MH5, Eladó téglaépítésű családi ház Székesfehérváron
Eladva

MH5, Eladó téglaépítésű családi ház Székesfehérváron

Székesfehérvár, Domb utca, 8000, Fejér
29.000.000 Ft
MH11,  üdülőház eladó, Zalakaros
Eladva

MH11, üdülőház eladó, Zalakaros

Zalakaros, 8749, Zala
3.900.000 Ft

Ingatlan kereső

  • Gyorskereső
  • (Ft). 0
    (Ft). 500,000,000
  •   Részletes keresés