MH809,  KIADÓ LAKÁS: 2022.10.01. Móron panellakás kiadó!

  • Alapterület: 53 m2
  • Fürdőszoba: 1
  • Szobák száma: 2
  • Kategória: Panel lakás

Ref # : MH809

Kiadva 130.000 Ft
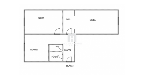
Modern Home Ingatlan Iroda kínálatából: Kiadásra kínálom Mór központi részén - Dózsa György utcában --- jó állapotú panellakást. Főbb jellemzők: A lakás: 53 nm. Emelet: 4 szintes társasház 2 – ik emelet. Elosztása: 2 szoba + hallos + előtér + konyha + fürdő + wc. Tájolása: K – NY-i. Az otthon melegét TÁVHŐ biztosítja, radiátor hőleadással. Az ingatlan jó állapotú: Több ponton záródó bejárati ajtó, műanyag nyílászárók kerültek beépítésre, redőnnyel és szúnyoghálóval felszereltek. Előtérben hangulatos spotvilágítású beépített szekrény. Fürdőszoba újszerű. ( mosógép nélkül ). Konyhában beépített konyhabútor villanytűzhellyel felszerelve. ( hűtő / mikro nélkül ). Szobákban laminált-parketta borítás, többi helyiség járólappal fedett. ( szobák bútorok nélkül ). Parkolás ingyenes övezetben lehetséges. Közös költség: 8000 Ft / hó. Minimum 1 évre bérelhető. A lakásban dohányozni és állatot tartani tilos! Költözhető: 2022. október 1. Összeg: 130.000 Ft / hó + rezsi. ( 2 havi kaució + 1 havi bérleti díj ) Az ingatlan Mór központi részén található, lokáció szempontjából minden perceken belül elérhető. Hívjon bizalommal.

További információk

Alap információk

Szobák száma: 2
Fürdőszoba: 1

További információk

Alapterület: 53 m2
Hasonló ingatlanok
Kapcsolódó ingatlanok
MH443, Szuper helyen lakás eladó Móron!
Eladva

MH443, Szuper helyen lakás eladó Móron!

Mór, Mór, 8060, Fejér
16.990.000 Ft
MH551, Móron családi ház!
Eladva

MH551, Móron családi ház!

Mór, Mór, 8060, Fejér
22.600.000 Ft
MH557, Móron téglalakás eladó!
Eladva

MH557, Móron téglalakás eladó!

Mór, Mór, 8060, Fejér
20.990.000 Ft
MH575, Mór csendes részén családi ház eladó!
Eladva

MH575, Mór csendes részén családi ház eladó!

Mór, Mór, 8060, Fejér
39.900.000 Ft
MH607, Mór szívében felújított panellakás eladó!
Eladva

MH607, Mór szívében felújított panellakás eladó!

Mór, Mór, 8060, Fejér
24.500.000 Ft
Ezeket az ingatlanokat látta már?
MH8, Kiadó összkomfortos panel lakás, Székesfehérvár
Kiadva

MH8, Kiadó összkomfortos panel lakás, Székesfehérvár

Székesfehérvár, 8000, Fejér
95.000 Ft
MH83, Szlovákiában kiadó családi ház
Kiadva

MH83, Szlovákiában kiadó családi ház

Szlovákia, Komárno, Újfalu
125.000 Ft
MH413, Székesfehérváron orvosi rendelő kiadó!
Kiadva

MH413, Székesfehérváron orvosi rendelő kiadó!

Seregélyesi u, Székesfehérvár, 8000, Fejér
100.000 Ft
MH780, Székesfehérvár ( belváros közeli ) iroda / üzlethelyiség kiadó!
Kiadva

Ingatlan kereső

  • Gyorskereső
  • (Ft). 0
    (Ft). 500,000,000
  •   Részletes keresés