MH685,  Székesfehérvár közkedvelt részén családi ház eladó!

  • Alapterület: 150 m2
  • Telekméret: 1112.00 m2
  • Fürdőszoba: 2
  • Szobák száma: 5
  • Kategória: Családi ház

Ref # : MH685

Eladva 80.000.000 Ft
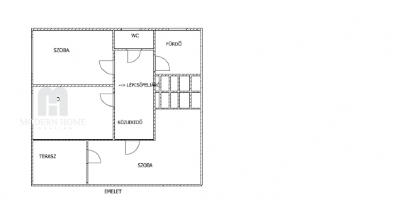
Remek lehetőség! Nagycsaládosok figyelem! Székesfehérvár Öreghegy városrészben, 150 nm-es, 3 szintes barátságos házikó eladó! A házhoz tartozik 3 egész szoba, 2 fél szoba, és egy nappali, valamint található még benne 2 fürdőszoba, 2 illemhelyiség, konyha. A telek mérete 1112 nm. A zord hideg beköszöntével az otthon melegét 2 cserépkályha, illetve elektromos fűtés is biztosítja. A melegvizet villanybojler adja. Az ingatlan hőszigetelt. Az ingatlanhoz tartozik 1 erkély, terasz, pince, illetve sok tároló helyiség. Biztonsági érzetünket fokozhatja, hogy az ajtó bomba biztos, mivel dupla zárral van ellátva. A garázs 2 autó használatára alkalmas. Ingatlan ipari-és éjszakai árammal is felszerelt. A lakásban járólap, lamináltpadló és szőnyegpadló található. A villanyvezetékek rézből vannak, és csőbe vannak szerelve. A gázcsap telken belül található, igény szerint beköthető. A bogarak ellen szúnyoghálóval ellátott ablakok védenek, illetve redőnnyel is el vannak látva. A kert rész biztosít mindent mi, szem-szájnak ingere, tetszés szerint kialakíthatunk konyhakertet, gyümölcsöt. A sok tárolási lehetőségnek köszönhetően, barkácsolni szeretőknek vagy virág imádóknak rengeteg hely biztosítja a tárolást. A kertben grill-és bográcsozó hely kialakítható. A sok tárolónak köszönhetően nyári konyha is berendezhető. A közelben boltok, pékség, buszmegálló, iskola, óvoda, gyógyszertár található. Az ingatlan csendes, nyugodt környezetben fekszik, közel a városhoz, de még is távol a város nagy zajától! Amennyiben hirdetésem felkeltette a figyelmét, kérem, keressen bizalommal, és előre egyeztetett időpontban nézzük meg ezt az ingatlan, mely lehet, hogy álmai otthona!

További információk

Alap információk

Szobák száma: 5
Fürdőszoba: 2

További információk

Alapterület: 150 m2
Telekméret: 1112 m2
Hasonló ingatlanok
Kapcsolódó ingatlanok
MH937, Exkluzív lakás Székesfehérváron!
Eladó

MH937, Exkluzív lakás Székesfehérváron!

8000, Székesfehérvár, 8000, Fejér
100.000.000 Ft
MH980,  Székesfehérváron újszerű családi ház eladó!
Eladó

MH980, Székesfehérváron újszerű családi ház eladó!

8000, Székesfehérvár, 8000, Fejér
149.990.000 Ft
MH303, Álomlakás eladó Székesfehérváron Ráchegyen!
Eladva

MH303, Álomlakás eladó Székesfehérváron Ráchegyen!

Székesfehérvár, Székesfehérvár, 8000, Fejér
55.000.000 Ft
MH309, Székesfehérváron a belvárosban téglalakás eladó.
Eladva

MH309, Székesfehérváron a belvárosban téglalakás eladó.

Székesfehérvár, Székesfehérvár, 8000, Fejér
20.800.000 Ft
Ezeket az ingatlanokat látta már?
MH3, Székesfehérvári felújított lakás eladó
Eladva

MH3, Székesfehérvári felújított lakás eladó

Székesfehérvár, belváros közelében, 8000, Fejér
13.500.000 Ft
MH4, Teljesen felújított lakás eladó, Székesfehérvár
Eladva

MH4, Teljesen felújított lakás eladó, Székesfehérvár

Székesfehérvár, Széchenyi utca, 8000, Fejér
10.800.000 Ft
MH5, Eladó téglaépítésű családi ház Székesfehérváron
Eladva

MH5, Eladó téglaépítésű családi ház Székesfehérváron

Székesfehérvár, Domb utca, 8000, Fejér
29.000.000 Ft
MH11,  üdülőház eladó, Zalakaros
Eladva

MH11, üdülőház eladó, Zalakaros

Zalakaros, 8749, Zala
3.900.000 Ft

Ingatlan kereső

  • Gyorskereső
  • (Ft). 0
    (Ft). 500,000,000
  •   Részletes keresés