MH780,  Székesfehérvár ( belváros közeli ) iroda / üzlethelyiség kiadó!

  • Alapterület: 160 m2
  • Telekméret: 700.00 m2
  • Fürdőszoba: 1
  • Szobák száma: 6
  • Kategória: Egyéb

Ref # : MH780

Kiadva 320.000 Ft
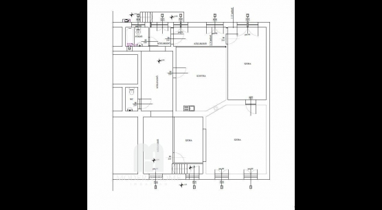
AZONNAL BIRTOKBA VEHETŐ! Székesfehérvár ( belváros közeli ) iroda / üzlethelyiség kiadó. Székesfehérvár belváros kedvelt részén, 700 nm - es telken, utcafronti, 160 nm - es, felújított ingatlan kiadó. Főbb jellemzők: A helyiség kiválóan alkalmas előadások, irodai tevékenységek, oktatás, nyelviskola, autósiskola, könyvelőiroda, informatikai tevékenységek részére. A villanyvezeték, informatikai szerver, spot-világítás teljes körűen felújított. Klíma előkészítés megtörtént. Az üzlet az adottságoknak köszönhetően több helyiségből tevődik össze. Színvonalas ügyfélváró várja az ide látogatókat, ahol igény esetén recepció kialakítható. Nagyobb terem 40 nm, hangszigetelt ajtó választja el, a kisebb terem 30 nm. Konyha ( 15 nm ), közlekedő ( 15 nm ), és egy belső iroda, ami szintén 15 nm külön helyiségből nyílik, zárható ajtókkal. Ügyfelek részére külön illemhelyiségek kialakítva. Oktatási célra 50 db szék, és 21 db 2-3 fős asztalok állnak rendelkezésre. Az ingatlan hátsó bejárata rendezett, parkosított udvarra nyílik. Az udvar a bérbeadó által opcionálisan művelt. Az ingatlan fűtése gáz – cirkó, radiátoros hőleadással. 30 nm pince is tartozik az ingatlanhoz. Bérleti díj: 320.000 Ft / hó + rezsi + 2 havi kaució. Hívjon bizalommal!

További információk

Alap információk

Szobák száma: 6
Fürdőszoba: 1
Living Areas: 160

További információk

Alapterület: 160 m2
Telekméret: 700 m2
Hasonló ingatlanok
Kapcsolódó ingatlanok
MH937, Exkluzív lakás Székesfehérváron!
Eladó

MH937, Exkluzív lakás Székesfehérváron!

8000, Székesfehérvár, 8000, Fejér
100.000.000 Ft
MH980,  Székesfehérváron újszerű családi ház eladó!
Eladó

MH980, Székesfehérváron újszerű családi ház eladó!

8000, Székesfehérvár, 8000, Fejér
149.990.000 Ft
MH303, Álomlakás eladó Székesfehérváron Ráchegyen!
Eladva

MH303, Álomlakás eladó Székesfehérváron Ráchegyen!

Székesfehérvár, Székesfehérvár, 8000, Fejér
55.000.000 Ft
MH309, Székesfehérváron a belvárosban téglalakás eladó.
Eladva

MH309, Székesfehérváron a belvárosban téglalakás eladó.

Székesfehérvár, Székesfehérvár, 8000, Fejér
20.800.000 Ft
Ezeket az ingatlanokat látta már?
MH8, Kiadó összkomfortos panel lakás, Székesfehérvár
Kiadva

MH8, Kiadó összkomfortos panel lakás, Székesfehérvár

Székesfehérvár, 8000, Fejér
95.000 Ft
MH809, KIADÓ LAKÁS: 2022.10.01. Móron panellakás kiadó!
Kiadva
MH83, Szlovákiában kiadó családi ház
Kiadva

MH83, Szlovákiában kiadó családi ház

Szlovákia, Komárno, Újfalu
125.000 Ft
MH413, Székesfehérváron orvosi rendelő kiadó!
Kiadva

MH413, Székesfehérváron orvosi rendelő kiadó!

Seregélyesi u, Székesfehérvár, 8000, Fejér
100.000 Ft

Ingatlan kereső

  • Gyorskereső
  • (Ft). 0
    (Ft). 500,000,000
  •   Részletes keresés